NIKE
NIKE
FLOATING YOGA STUDIO - WOMEN'S TORONTO 15K MARATHON
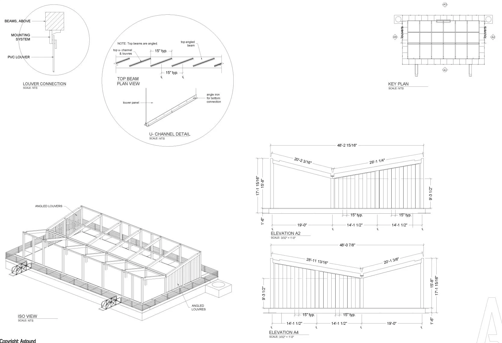
As one of several experiential activations for the Nike Women’s 15K Run in Toronto, the Crystal Coliseum was a full yoga studio—complete with locker rooms, DJ booth, and reception area—built onto a floating barge which allowed participants to enjoy a wide range of gym classes, while looking out over the tranquil waters of Lake Ontario.
BEHIND THE SCENES
BEHIND THE SCENES
Value
Over the course of four days, the entire Nike Crystal Coliseum was home to over 30 N+TC live classes, hosted by 10 Nike Master Trainers who led athlete-inspired studio, H.I.T and gym workouts every 90 minutes to approximately 3,000 women athletes. Contributing to keeping the female energy alive throughout almost every workout from the crack of dawn onwards, was DJ Feel Good Smalls who provided upbeat, motivating music to help push every women in class beyond their limits and to finish strong and #BETTERFORIT.
Media Coverage















