AQUA RESTAURANT GROUP
AQUA RESTAURANT GROUP
Michelin Star Restaurant - Hutong NYC
Michelin Star Restaurant - Hutong NYC
The first North American restaurant within the international Aqua Restaurant Group franchise, Hutong NYC
is a Michelin Star Northern Chinese dining experience in Midtown Manhattan. The 17,000 square foot restaurant is the 23rd restaurant within the Aqua franchise, and the second to be designed by the UK-based bespoke luxury interior design firm, Robert Angell Design International. Inspired by the Art Deco capital of the world, the design melds smooth lines, geometric shapes and opulent materiality to create this anti-traditional elegant dining experience.
In keeping with Michelin Star status, the opulent Hutong experience is all in the details. The built environment serves as a backdrop for their excellence in hospitality. The restaurant is divided into 3 distinct areas; the bar, restaurant and private dining rooms. Each space offers a unique experience to suit a myriad of occasions within the space.
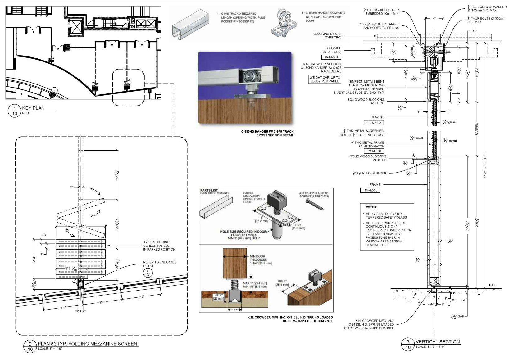
Challenge
Challenge
It is no secret that construction projects in midtown Manhattan pose a myriad of unique challenges. From union restrictions to logistics limitations for deliveries, this project required expert coordination from our team in order to achieve this timeline.
The scale of the project required concurrent phases to be constructed simultaneously, in addition to the complexity of the ASTOUND scope which needed to be completed before finished surfaces were installed. This required phased installations which were supported by digital fabrication, allowing components to be fabricated separately and align with digital accuracy on-site.
Value
Digital fabrication also lent itself to coordination with other trades on-site. With most every part being 3D-modeled and computer-cut, locations of sprinkler heads, electrical locations and other vendor’s features.
Another unique parameter of this project was the number of finishes and materials. With over 50 material specifications, the project team needed to develop detailed coordination drawing packages to ensure the correct materials and finishes--like the brushing direction--were correct on this vast scope.




















