ART GALLERY OF ONTARIO
Suspended Coatrack
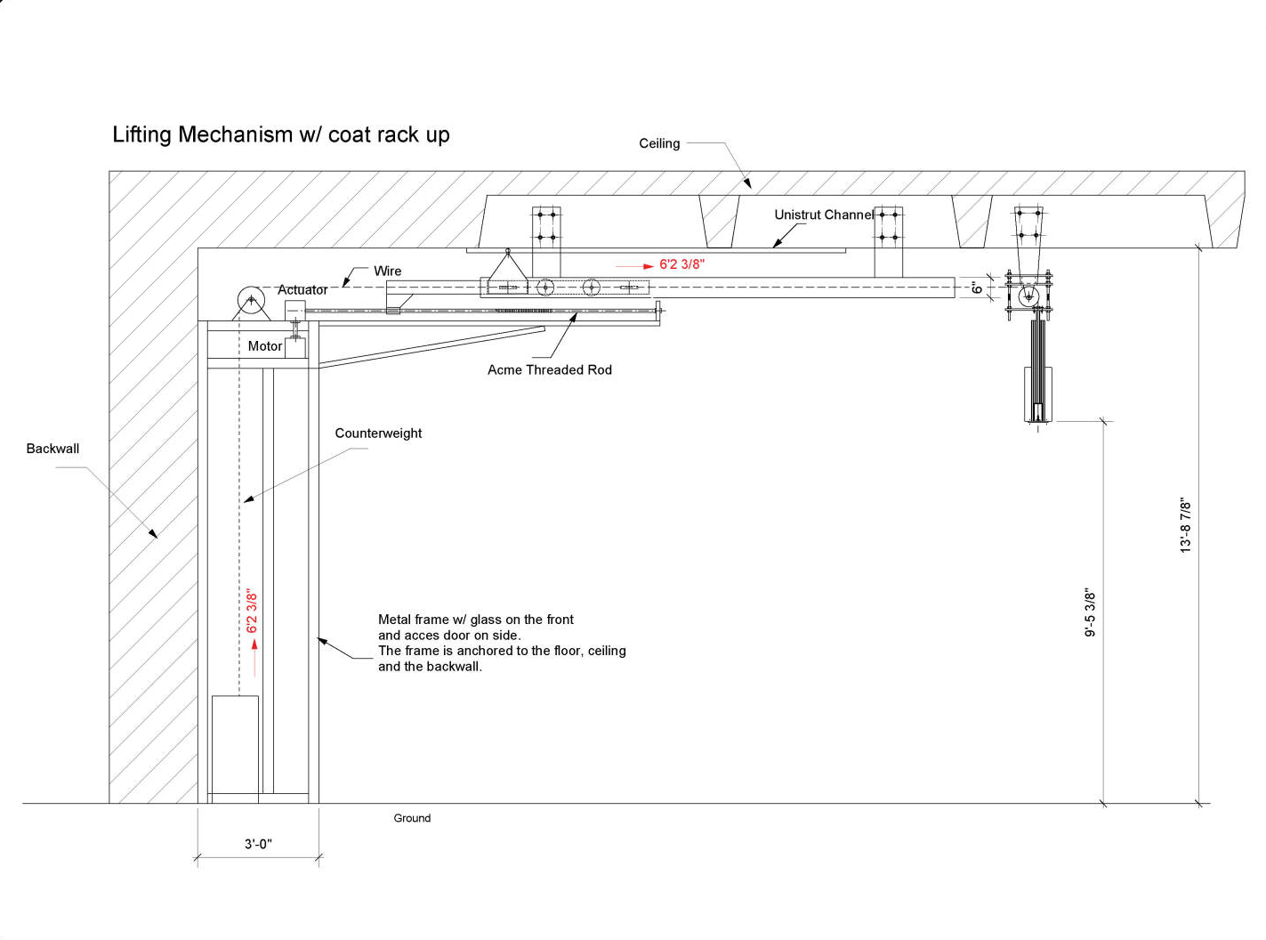
ASTOUND created an artistic, 175 linear ft., piece currently featured as a permanent structure in the Frank Gehry designed Art Gallery of Ontario. The Coat Rack Installation required significant mechanical engineering along with detailed design and fabrication. We worked with top architectural firm, Hariri Pontarini, to fabricate and install this creative piece that will be seen by thousands of visitors.









