LEO BURNETT X CRONOS GROUP
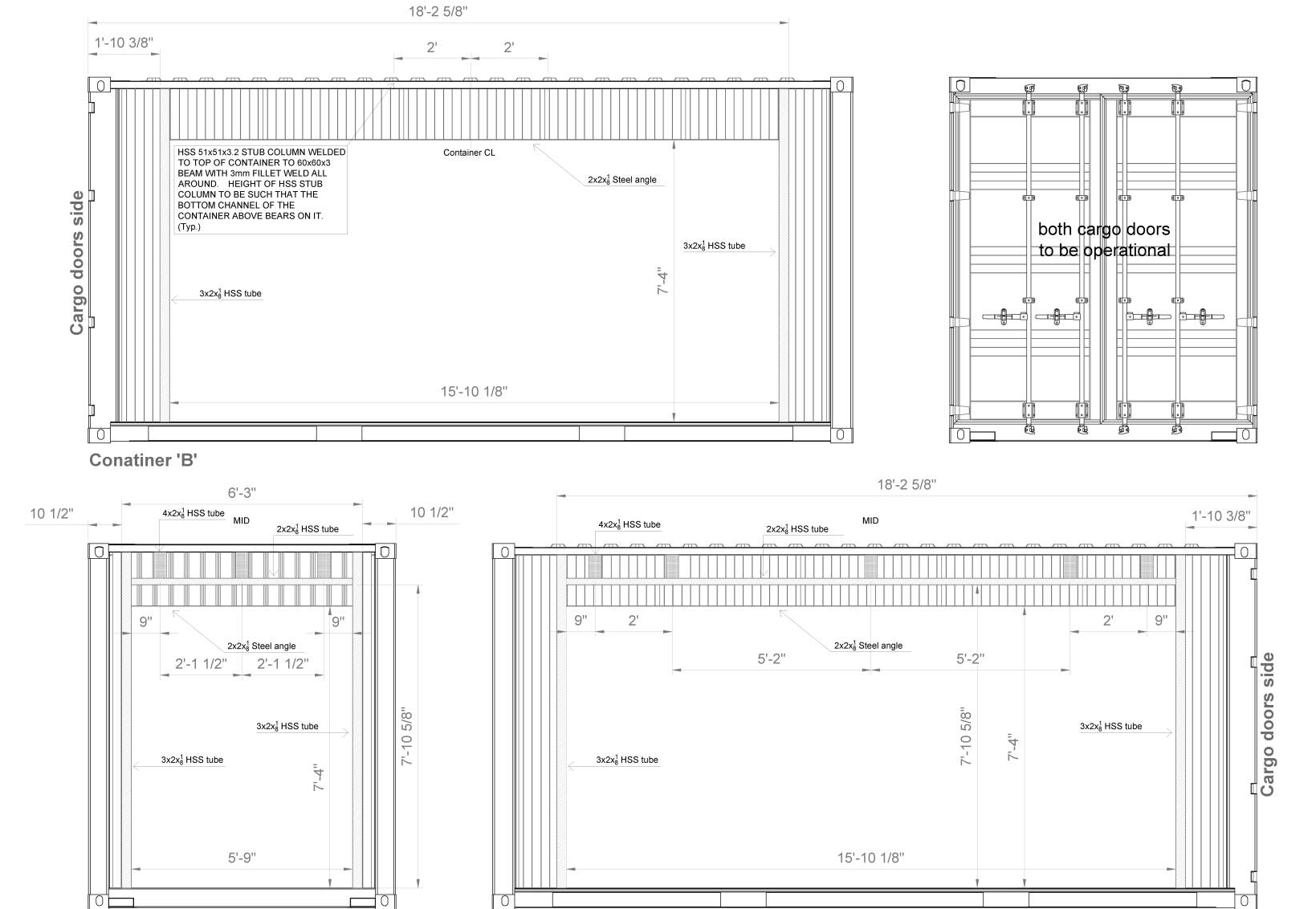
Outdoor Shipping Container Activation
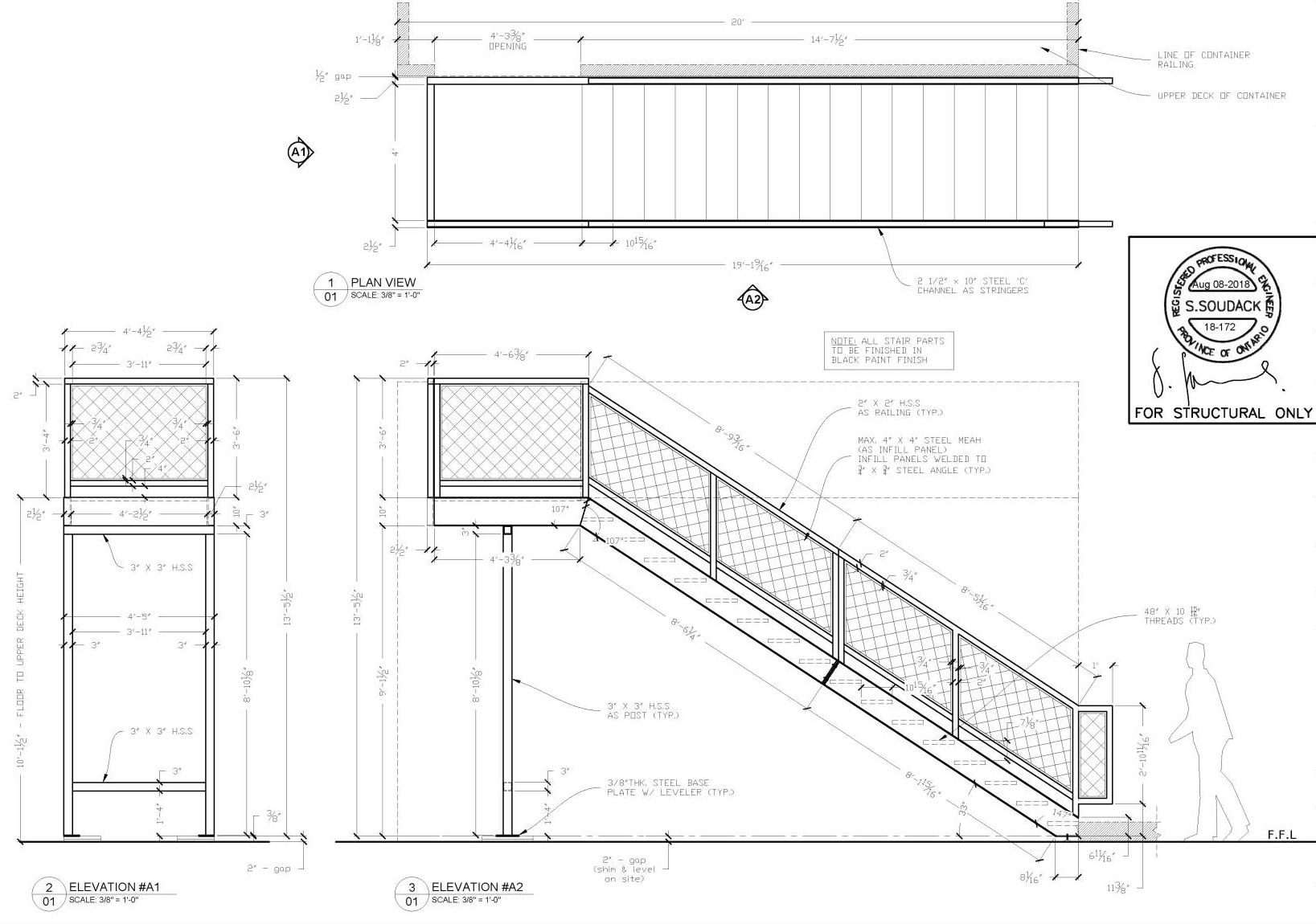
Spinach Summer Festivals is an activation designed to increase brand awareness and collect data at a series of festivals across Ontario in Summer. The activation consisted of an enclosed 19+ only area which housed the main container structure built from four stacked shipping containers along with games, prize activations, a viewing platform and a shareable photo moment.
Consumers were checked for ID as they entered the space to ensure they were 19+. Visitors were then greeted by brand ambassadors who explained what Spinach Farms is and what was taking place within the activation space. Consumers were then able to sign up to an e-newsletter in order to earn a ticket to spin a prize wheel. The prize wheel included tons of prizes such as VIP ticket upgrades, backstage tours, meet-and-greets, and branded swag. Once the consumer had taken part in the prize wheel, they were able to relax at picnic tables and Muskoka seating or get a little more active by playing games such as giant Jenga or corn hole. Consumers were also encouraged to take photos at the shareable photo moment – a giant vegetable garden with giant ride-on eggplant.











