MENKES DEVELOPMENTS
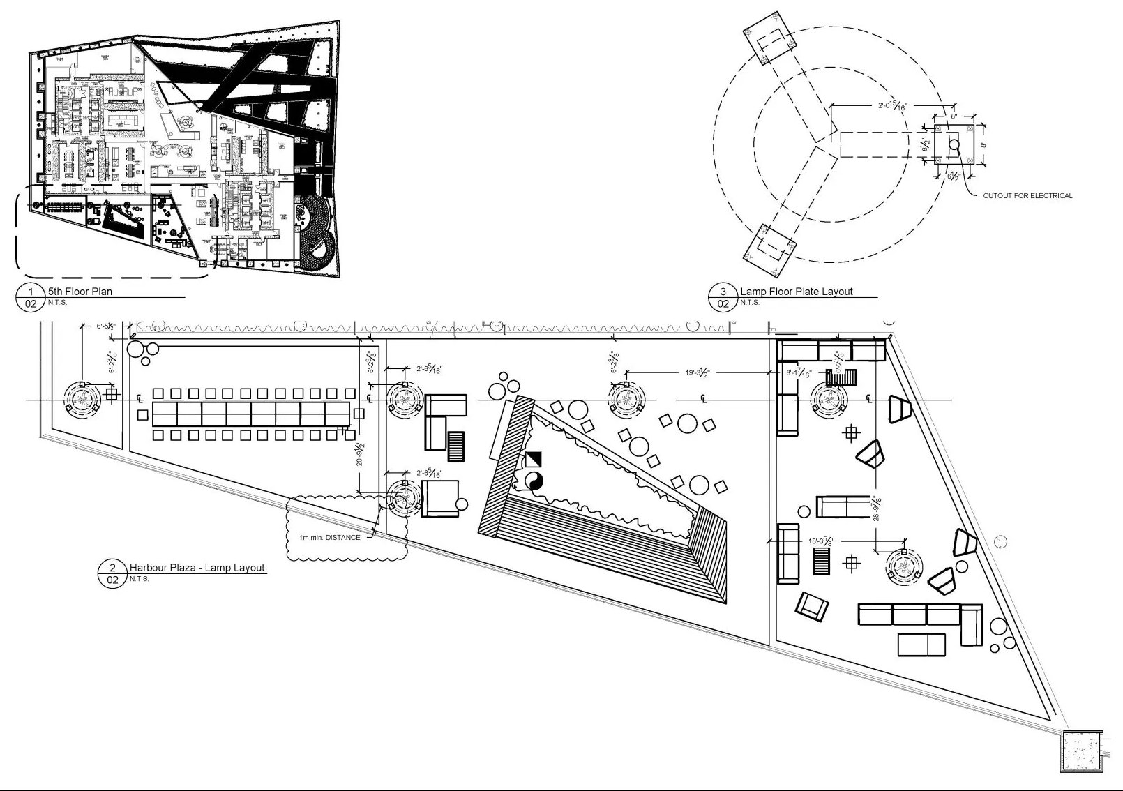
Exterior Lamp Features
Create an attractive permanent outdoor lighting solution engineered and constructed in a way that would withstand the elements and also matched the overall design of the outdoor terrace.
Through focused research and development in our fabrication shop, we were able to develop a custom solution that would produce the weave-like effect requested by the client, while still maintaining durability of the lampshades. The final material was a custom fiberglass string wrapped around the frame of the lampshade to create the ‘weave’ texture. Further research and understanding of the building site was required prior to fabrication to ensure that each piece (roughly three meters tall) was designed and fabricated with rooftop installation logistics in mind.









